It's Time to Move on...from Your Old Panels! ORDER Your Upgrade Today! 

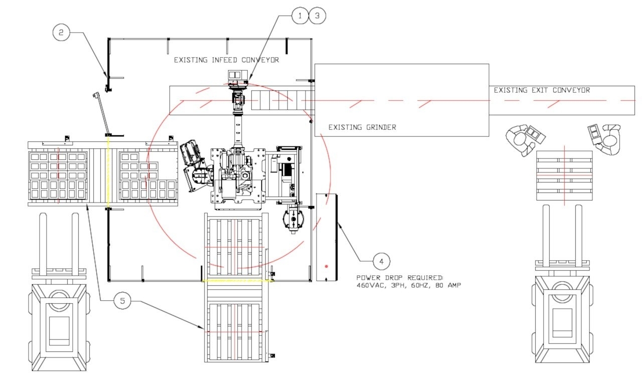
Robotic Solutions

Robotic handling is available for a wide range of applications. Besser customizes solutions based on the production needs and layout constraints. A few standard examples are listed below and more are available upon request!

Robotics layout 1

Cuber and Decuber

Cubing products off production boards, or decubing them for offline processes, we've got you covered. Using either a clamp gripper or vacuum gripper, the versatility of a robotic cubing / decubing solution is unmatched. This system can match a variety of layouts including small footprints. This system can also handle wood pallets, tier sheets/paper/foam, and more! 

Board buffer 4

Board Buffer

Adding a board buffer system in a production line allows the dry and wet sides to run independently of each other at different speeds. This system can easily retrofit into existing layouts. 

Wetcast automation 1

Wet Cast Automation

Wet cast plants are traditionally labor intensive. Entrust these operations to robots and make your production agile. This automation can be adapted to existing plants as well as when installing a new greenfield operation.

Sheet dispenser 3

Protective Sheet Dispenser

The foam/mesh dispenser is the perfect addition to your cubing system. Designed to work with a robot to automatically pick and place a protective sheet from a magazine to where the cube is and deposit it directly onto product layer. It can handle rolls of material and cut to length, or handle pre-cut material from a bin.

Need help with equipment, parts, or support?

Let's Talk

+1.989.354.4111

Or find your sale representative contact information here.

Find Your Sale Representative